ミドリノ箕面桜井3号地完成見学会
10月初旬に開催しましたミドリノ箕面桜井3号地完成会。
前回の時来れなかったお客様もぜひこの機会にお越しください。

【断熱リノベ】

※年末年始の対応について
12月28日(日)〜1月4日(日)はお休みをいただいております。
この期間にいただいたご予約・ご相談は、
1月5日(月)以降、順次ご対応させていただきます。
12月28日(日)〜1月4日(日)はお休みをいただいております。
この期間にいただいたご予約・ご相談は、
1月5日(月)以降、順次ご対応させていただきます。
完成見学会
見どころ
お家の性能
木造2階建て
スーパーウォール工法
第一種全熱交換型換気
耐震等級:3
断熱等級:6
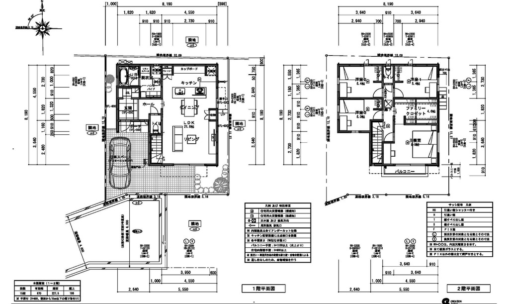
土地面積:115.28㎡(約34.87坪)
延床面積:117.17㎡(約35.49坪)
外皮平均熱貫流率(UA値):0.44W/㎡K
隙間相当面積(C値):0.29㎠/㎡
無垢の床を採用
無垢の床で、はだしが気持ちいい暮らし。
夏はサラッと、冬はひんやりしすぎず、年中はだしでも快適に暮らせます。
家の中で過ごす時間が、もっと心地よくなる素材選びをしています。
また、高性能断熱サッシを採用し、夏の強い日差しや冬の夢たい外気をしっかり遮断。外気温の影響を受けにくいため、冷暖房の効率も高まり、一年を通して快適な室内環境を保ちます。
サッシひとつで暮らし心地は大きく変わります。
結露の軽減や光熱費の節約にもつながるのが大きな魅力です。
間取り
・4LDK
・リビングダイニング広々
・アイランドキッチン
・シューズクローク
・キッチンパントリー
・リビング収納
街並み・外観
建築士がデザインした統一感のある街並み。
外観は一棟一棟、建築士が設計。分譲住宅全体の景観にもこだわり、周辺環境と調和もばっちりです。
洗練されたデザインで、街全体が美しく映えるように仕上げています。
前回好評だった見学会!
10月初旬に行った見学会が大変好評でした。
大阪・北摂で家づくりを手がけるモリジュウが提案する分譲地「ミドリノ箕面桜井」。
耐震・耐久・気密・断熱など将来にわたって誇れる工法で、心地よい空間を体感いただけます。
見学会は完全予約制となっております。
お子様連れも大歓迎です。
ぜひご家族でお越しください。
※詳細な住所はご予約後メールにてご案内いたします。
お知らせ

※年末年始の対応について
12月28日(日)〜1月4日(日)はお休みをいただいております。
この期間にいただいたご予約・ご相談は、
1月5日(月)以降、順次ご対応させていただきます。
12月28日(日)〜1月4日(日)はお休みをいただいております。
この期間にいただいたご予約・ご相談は、
1月5日(月)以降、順次ご対応させていただきます。
イベント概要
| タイトル | ミドリノ箕面桜井3号地完成見学会 |
|---|---|
| 開催日時 |
〜2026年02月28日(土) 10:00〜17:00 |
| 開催場所 | 大阪府箕面市半町3丁目 |
| 会社ホームページ | http://mori-ju.co.jp/ |