45周年記念特別価格/土地情報公開!/気仙沼市九条
九条造成地区画
トップハウザーササキは、おかげさまで2025年で創業45周年を迎えます。
こうして成長を続けてこられたのも、ひとえに皆様のご支援、ご愛顧の賜物であると心より感謝申し上げます。
これからも気仙沼市を中心として、近隣市町村で、みなさまの暮らし作りのサポートをしてまいりたいと思っております。
今回、創業45周年を記念して、トップハウザーササキ自社物件「九条分譲地」を
特別価格で販売 することにいたしました。
「九条分譲地」は、開発行為・宅地造成工事を行った綺麗な区画の良い場所で、気仙沼の市街地へのアクセスも抜群の立地となります。
- 「給排水引込済み」
- 「造成工事済み」
- 「自社物件につき仲介手数料無料」
で、建てる上で土地に余計な費用が掛かりません。
もし、九条の土地にご興味がございましたら、住宅の専門スタッフが皆様をご案内し、様々なご質問にお答えいたします。
また、土地のお話だけでなく、住宅のデザインや性能、機能性についてもご説明しております。
現地に向かうのに、一度当社事務所へお越しいただきご案内させていただきたいと思いますので、お気軽にお越しください。
各区画の土地情報等は、下記の通りです。
建築条件付土地販売会
見どころ
土地情報
トップハウザーササキの分譲地です。
前面道路は分譲地内道路なので、交通量も少ないので、 子育て世代にも安心 です。
また、区割も整っており敷地を有効利用しやすい形状になっています。
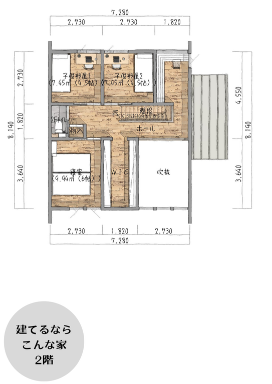
九条246-13について
▲ここに建てるならの参考間取りも載せていますので、見てみてください。
建築条件付き特別価格は
「850万円」となります。
北側には田んぼが広がる、自然豊かな土地となります。
北側に子供部屋やスタディーカウンターなどを計画して窓から自然を眺めながらお勉強が出来るのが魅力的かもしれませんね。
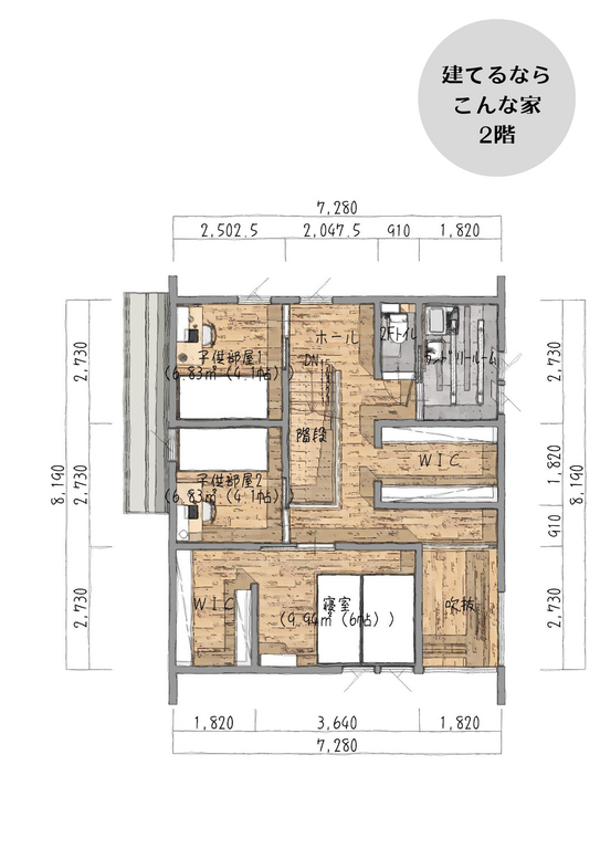
九条246-12について
▲ここに建てるならの参考間取りも載せていますので、見てみてください。
建築条件付き特別価格は
「840万円」となります。
北側・東側には田んぼと自然が広がる、豊かな土地となります。
北側や東側に大きな窓を設けて、開放的な暮らしを楽しむのに最適な場所となります。
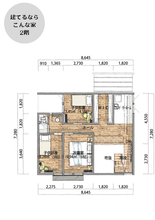
九条246-14について
▲ここに建てるならの参考間取りも載せていますので、見てみてください。
建築条件付き特別価格は
「950万円」となります。
南側道路の明るい土地となります。
九条246-8について
▲ここに建てるならの参考間取りも載せていますので、見てみてください。
建築条件付き特別価格は
「960万円」となります。
北側道路ですが、南側の土地が開けているため、明るい土地となります。
九条246-5について
▲ここに建てるならの参考間取りも載せていますので、見てみてください。
建築条件付き特別価格は
「940万円」となります。
北側・西側道路ですが、南側の土地が開けているため、明るい土地となります。
連絡方法について
土地案内の流れ
1.「九条の土地について相談したい」とご連絡ください。
2. 面談日についてご連絡します。
3. 一緒に現地を確認していただき、ご希望に合うか見ていただきます。
4. 後日、資金計画やプランニングをさせていただきます。
以上となります。
トップのこだわり
省エネで健康に暮らすために必要なことは、「高い断熱性能」と「気密性」、そして家族の命と資産を守るために必要な「高い耐震性(+制震)」を備えた家づくりにこだわりをもっています。
断熱性能と気密性能はどちらも疎かにできない住宅の快適さやエネルギー効率を大きく左右する重要な要素です。
01 断熱性能の大切さ
断熱性能が低いと、室内の熱が外に逃げやすくなり、冷暖房効率が悪化します。これにより、エネルギーコストが上がるだけでなく、夏や冬の極端な気候下では快適さが損なわれ、生活の質に影響を及ぼす可能性があります。
02 気密性能の大切さ
気密性能が低いと、隙間からの空気の流入によって断熱材の効果が十分に発揮されず、室内の温度が安定しにくくなります。また、外からの湿気が侵入することで、結露やカビの発生リスクが高まり、建物や住人に悪影響を及ぼすことがあります。
これから先、地球温暖化がさらに進めば、気温が上がり、今以上にエネルギー消費を消費する可能性が高いです。性能にこだわりをもった住宅は購入時は安くはないですが、住んでからは少しエネルギーで快適で健康な暮らしを維持できるので、ランニングコストが少なくすみます。
これが断熱と気密にこだわる理由です。
もうひとつのこだわりが耐震性能(+制震)です。
住宅は家族の命を守る役目もあります。そのため、耐震等級3と耐風等級2が必要と考え、標準仕様としています。
03 耐震性能の大切さ
耐震等級3とは、建築基準法で定められた最高等級で、多くの建物倒壊があった2016年熊本地震でも耐震等級3の住宅は倒壊数0棟であったことからその有効性が示されています。
皆さんの身近にある消防署や警察署は耐震等級3が義務付けられています。もしもの時、防災拠点が倒壊してしまっては目的が果たせなくなるためです。
04 制震性能の大切さ
弊社で採用している制震テープは、お家の外側の壁すべてに貼ることで、お家をまるごと揺れに強くします。また、テープを貼ることで釘が抜けづらくなり、繰り返しの地震にも強くなるので、ご家族や大切な財産をしっかりと守ります。
05 耐風性能の大切さ
耐風等級2の建物は、耐風等級1の1.2倍の耐久性能を備えています。暴風にさらされても揺れにくいため、内装の仕上げ材である壁紙や塗り壁などの損傷を抑えることができます。
気候変動で台風の多発生や大型化が考えられています。これからは地震だけでなく、暴風対策もしていかなければならないと考えます。
我々はデザインもこだわっていますが、ただお洒落な家を建ててるわけではありません。
デザインも性能の一部です。
お洒落のためだけのデザインではなく、お洒落で性能にもこだわるデザインが大切です。
「 デザインも性能 」
陽を入れたり、遮ったり、風をキャッチしたり、
窓の位置・開き方、屋根の形状、良いデザインには意味があります。
お知らせ
イベント概要
| タイトル | 45周年記念特別価格/土地情報公開!/気仙沼市九条 |
|---|---|
| 開催日時 |
〜開催中 10:00〜17:00 |
| 開催場所 | 宮城県気仙沼市上田中2丁目2-7 |
| 会社ホームページ | https://t-houser.com/ |
