西舞鶴 完成見学会

京都府舞鶴市円満寺
2024年11月23日(土)〜2024年12月01日(日) 10:00〜19:00

予約可能日時

2025 12
1 - 2 - 3 - 4 - 5 - 6 -
7 - 8 - 9 - 10 - 11 - 12 - 13 -
14 - 15 - 16 - 17 - 18 - 19 - 20 -
21 - 22 - 23 - 24 - 25 - 26 - 27 -
28 - 29 - 30 - 31 -
:即予約可 残1~5 :即予約可(残りわずか) - :予約不可 × :予約一杯 :要問い合わせ (TEL: 0120-638-780

※日付を選ぶと予約時刻を選択できるようになります。

見どころ

総タイル貼りの家 完成見学会!
 広々LDKと家事動線に配慮した間取りがお薦めポイント。
 室内物干し付きの広々サニタリールーム。
 外壁のタイルは、3種類を貼り分けて施工しています。
 
予約制
平日や夜間の見学も可能です。※事前予約をお願いいたします。
 
12月1日は特別企画を開催
①野菜の詰め放題 
 ご来場の特典には数量の限りがございます。準備量がなくなり次第終了します。野菜の種類は当日のお楽しみになっております。
※当日参加受付もあり、但し参加定員に余裕がある場合のみ受付可能です。
②住宅ローン相談会
JA京都にのくに様のご協力により開催。
住宅ローン以外のマイカーローン、リフォームローンなど幅広くご相談が可能です。
 
新築 完成見学会
メンテナンス性の高さは外壁総タイル貼りの魅力、
地震に強いプレミアムハイブリッド工法、
ZEH基準の断熱性能など クレバリーホームの高性能住宅が完成しました。
 
 

イベントタグ

  • 新築
  • 分譲地
  • プレゼント
  • 完成見学会
  • 総タイル貼り
  • モデルハウス
  • イベント
  • ローン相談会

マップ

京都府舞鶴市円満寺

大きな地図で見る>>>

キャンペーン情報

新規来場WEB予約で、クオカード2,000円分を進呈。

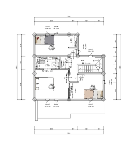
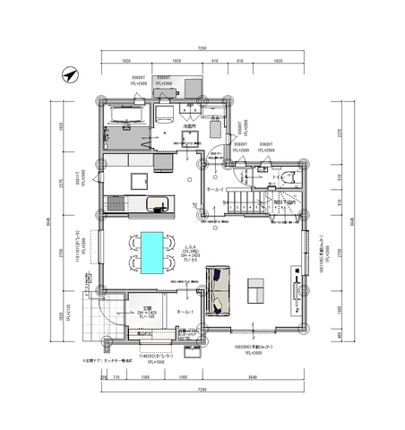
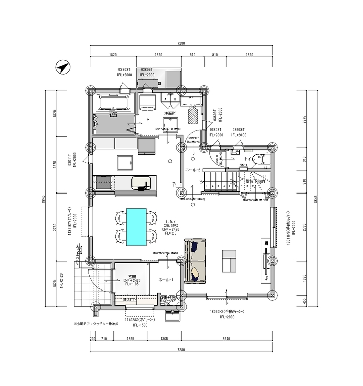
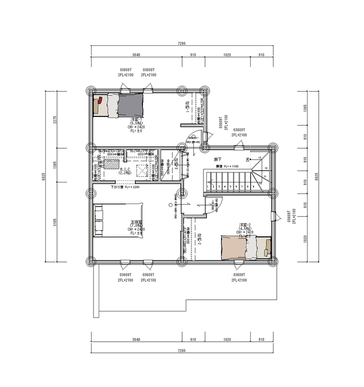
間取り

  • 西舞鶴 完成見学会の間取り画像
  • 西舞鶴 完成見学会の間取り画像

概要

タイトル 西舞鶴 完成見学会
開催日時 2024-11-23 ~ 2024-12-01
10:00〜19:00
開催場所 京都府舞鶴市円満寺
種別 予約承認制
種類 完成見学会
会社ホームページ http://www.soshin-inc.com/housing

関連

予約日時を選択してください