こなれ感のある地震に強い家見学会開催!
完成見学会
10:00〜17:00
高知県高知市瀬戸東町

見どころ
素敵なおしゃれなお家の見学会を開催します!
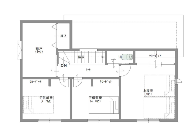
回遊できる間取りや内観の色選びにもこだわり、収納もたくさん完備しています。
シアタールームとしても活用できる5帖のフリールームなどお施主様の想いが詰まったお家が完成しました。
ぜひお家を検討中の方やリフォームをご検討中の方、是非参考にお越しください。お待ちしております!
回遊できる間取りや内観の色選びにもこだわり、収納もたくさん完備しています。
シアタールームとしても活用できる5帖のフリールームなどお施主様の想いが詰まったお家が完成しました。
ぜひお家を検討中の方やリフォームをご検討中の方、是非参考にお越しください。お待ちしております!
イベント概要
| タイトル | こなれ感のある地震に強い家見学会開催! |
|---|---|
| 開催日時 |
2024年10月12日(土)〜2024年10月26日(土) 10:00〜17:00 |
| 会社ホームページ | https://3mhome-kouchi.com/ |
