暮らしに寄り添うコンセプトハウス「Lykke」グランドオープン
暮らしに寄り添うコンセプトハウス「Lykke」グランドオープン
「コンセプトハウスLykkeグランドオープンイベント」を開催します!
『✨🏠暮らしに寄り添う「Lykke」グランドオープン!🏠✨』
2026年1月、高気密・高断熱×パッシブデザインを実現した
新コンセプトハウス「Lykke(リッケ)」が
長浜市平方町にOPENします🎉
🍃2人の女性設計士が考えた、自分時間も家族時間も大切にできる”ほっとくつろげる家”
✔家事も育児もラクに、心地よく暮らせるおうち効率的な家事動線&充実収納
✔デザイン性と使いやすさを兼ね備えた間取りや仕様に
✔北欧×和モダンの”ジャパンディスタイル”
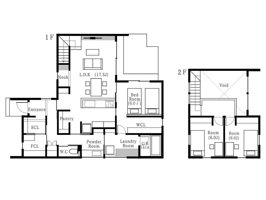
✔LDKや寝室、水回りを1階に集約した半平屋のような暮らし方
当日はキッチンカーも登場!

是非、ご家族で遊びに来てください!
見て、感じて、体感できるコンセプトハウスです✨
✨✨✨ 予約来場特典 ✨✨✨
事前予約の上ご来場の方(ご見学・アンケートご記入)に
Amazonカード(お一家族様1枚)
マルシェ引換券(おひとり様1個・ご家族様最大3個1SET)
数に限りがございますので、ご予約はお早めに!
---------------------------------------------------------------------------
【コンセプトハウスLykkeグランドオープンイベント】
■会場:長浜市平方町「Lykke」
■日程:2026年1月24日(土)-25日(日)
■時間:10:00~17:00
📅予約優先制
この機会をお見逃しなく!
お子様連れOK!
ご一緒にお越しください♪
モデルハウス
見どころ
ジャパンディスタイル
北欧×和モダンのジャパンディスタイル。
木のぬくもりや自然素材を活かし、シンプルでありながらも落ち着きと温かさを感じられる住空間
木のぬくもりや自然素材を活かし、シンプルでありながらも落ち着きと温かさを感じられる住空間
デザイン性と使いやすさを兼ね備え、心地よく暮らせるおうち効率的な家事動線&充実収納
デザイン性と使いやすさを両立し、
毎日の家事がスムーズになる動線設計。
心地よく、すっきり暮らせる住まいです🏠✨
毎日の家事がスムーズになる動線設計。
心地よく、すっきり暮らせる住まいです🏠✨
LDKや寝室、水回りを1階に集約した半平屋のような暮らし方
LDKや寝室、水回りを1階に集約した
“半平屋”のように暮らせる住まいをイメージ。
ワンフロアで生活が完結する、将来を見据えた間取りです。
家族構成やライフスタイルの変化にも柔軟に対応。
今も、これからも心地よく暮らせる住まいを表現しています。
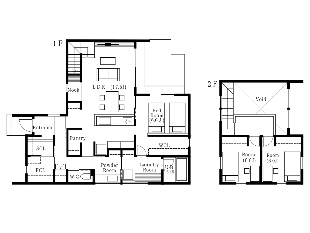
2Fの部屋の使い方の一例
2Fの部屋の使い方としての一例です。
子ども部屋として使用
※写真の家具はイメージ画像です
Lykkeの間取り
イベント概要
| タイトル | 暮らしに寄り添うコンセプトハウス「Lykke」グランドオープン |
|---|---|
| 開催日時 |
2026年01月24日(土)〜2026年01月25日(日) 10:00〜17:00 |
| 開催場所 | 滋賀県長浜市平方町 |
| 会社ホームページ | https://www.nagajyu.jp/ |