予約可能日時
※日付を選ぶと予約時刻を選択できるようになります。
見どころ
8月10日(土)・8月11日(日)
8月17日(土)・8月18日(日)の4日間限定!
岡山市中区下にて
『洗濯も収納もスムーズにこなせる!
広いランドリールームとWICのあるお家』の
完成見学会を開催します♪
おすすめポイントは3点!
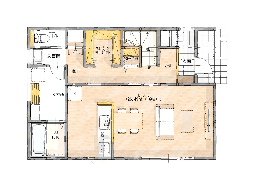
①玄関から入ってすぐ家族団らんリビングへ
②洗濯のしやすい広い脱衣所&ランドリールーム
③収納力抜群でランドリールームからのアクセスも抜群のウォークインクローゼット
お施主様のこだわりがたくさん詰まった自慢のお家です!
是非、この機会にご覧くださいませ!!
マップ
岡山県岡山市中区下
キャンペーン情報

間取り
概要
| タイトル | 【中区下】4日間限定!完成見学会開催 |
|---|---|
| 開催日時 |
2024-08-10 ~ 2024-08-18
10:00〜17:00 |
| 開催場所 | 岡山県岡山市中区下 |
| 種別 | 予約制 |
| 種類 | 完成見学会 |
| 会社ホームページ | http://www.healthy-home.co.jp/ |