予約可能日時
※日付を選ぶと予約時刻を選択できるようになります。
見どころ
こんにちは!
ヘルシーホーム倉敷店です!
【完成見学会のご案内】
倉敷市福井 完成見学会
~ジャパンディ~和と北欧が調和する家
日時:2/1(土)・2/2(日) 10:00~17:00
お施主様のご厚意で2日間限定開催です♬

☆おすすめPOINT☆
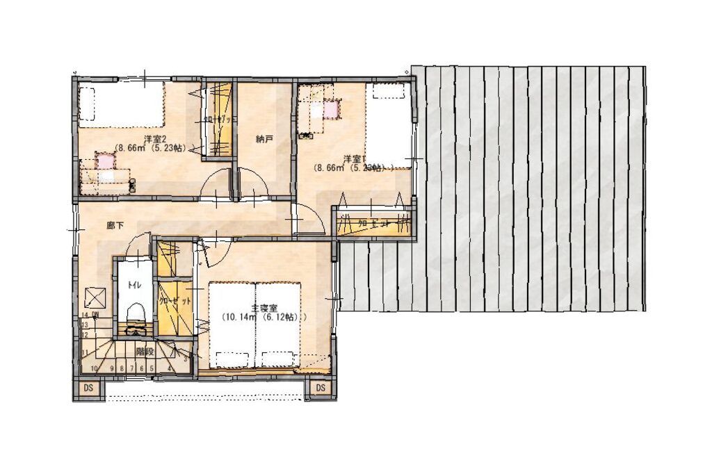
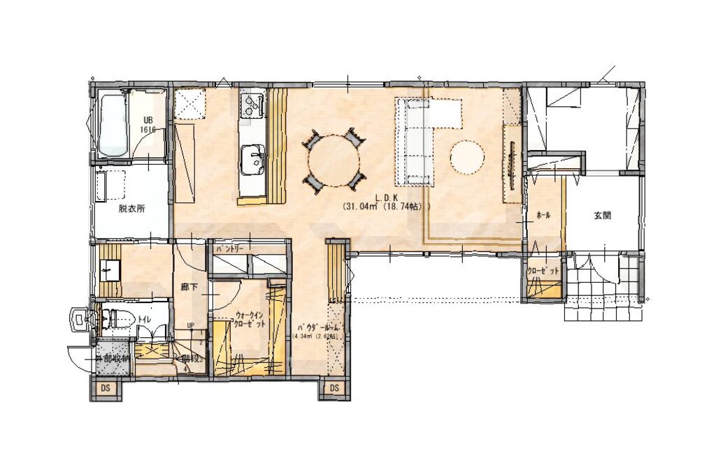
・床材の質感にこだわったジャパンディデザイン
・勾配天井の開放感
・LDK、パウダールームから庭とつながる生活空間


細部までこだわりの詰まった素敵なお家です!
皆様のご来場心よりお待ちしております(^^♪



※画像は施工事例です
マップ
岡山県倉敷市福井
キャンペーン情報

間取り
概要
| タイトル | 【倉敷市福井】完成見学会!~ジャパンディ~和と北欧が調和する家 |
|---|---|
| 開催日時 |
2025-02-01 ~ 2025-02-02
10:00〜17:00 |
| 開催場所 | 岡山県倉敷市福井 |
| 種別 | 予約制 |
| 種類 | 完成見学会 |
| 会社ホームページ | http://www.healthy-home.co.jp/ |