予約可能日時
※日付を選ぶと予約時刻を選択できるようになります。
見どころ
運営会社:福知山小谷産業株式会社
(ソーラーサーキット契約工務店)
(ソーラーサーキット契約工務店)
予約依頼いただいた後に、ご対応可否を回答する予約承認制とさせていただいております。
希望日時でのご対応が出来ない場合もございますので、予めご了承ください。
希望日時でのご対応が出来ない場合もございますので、予めご了承ください。
― 福知山に暮らす。建築家と建てる。 ―
モデルハウスコンセプト:「生活と環境に優しく、家族の充実したひとときが生まれる暮らし」
気密性・断熱性能が高く、自然のエネルギーを活かした家として環境に優しく過ごしやすい暮らしを実現。
また、生活の動線を意識したデザインで家事の時間を軽減し、家族のコミュニケーションが自然と増える住まいを提供します。
Point:ソーラーサーキットの家
Point 01:快適のヒミツ。「外断熱」工法
家全体をすっぽり包み込むように断熱材を使用する「外断熱」を採用。
断熱材の切れ目も少ないため、気密性能も高く年中快適な環境をつくります。
Point 02:自然のチカラで生涯快適へ。
壁内に空気を通して家にこもる熱や湿気を外に排出する「二重通気工法」。
まるで「衣替えする」ように、夏の暑さ・冬の寒さを、和らげてくれる。
自然のチカラを活かすから省エネにもつながります。
Point 03:キレイが続く換気システム

人の生涯で一番長い時間を過ごす、“我が家の空気”をキレイに保ち続けます。
空気の流れを計算した24時間換気システムでほこりや匂いのこもりにくい快適な暮らしを実現。


Flow:家づくりの流れ





― 運営会社:福知山小谷産業株式会社 紹介 ―
見えるものへのこだわりは人それぞれ。和のスタイル、モダンなスタイル色々あると思いますが、見えないところへのこだわりは皆さん同じではないでしょうか?
「快適で心地良いくらし」これを望まない方はいらっしゃらないと思います。後回しにしがちですが、まずはしっかりとご提案・ご相談させていただきます。
「快適で心地良いくらし」これを望まない方はいらっしゃらないと思います。後回しにしがちですが、まずはしっかりとご提案・ご相談させていただきます。

本社所在地:京都府福知山市字荒河小字狭間4-3
マップ
京都府福知山市字長田小字野臺
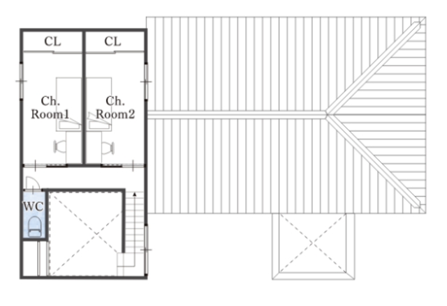
間取り
概要
| タイトル | 来場特典アリ!【京都府福知山市】モデルハウス見学会 |
|---|---|
| 開催日時 |
2025-03-28 ~
10:00〜18:30 |
| 開催場所 | 京都府福知山市字長田小字野臺 |
| 種別 | 予約承認制 |
| 種類 | 展示場 |
| 会社ホームページ | https://www.schs.co.jp/ |