【会津若松市明和町】ヤマダホームズ新築モデルハウス 完成見学会&販売会開催!
【会津若松市明和町】
2026年1月、ヤマダホームズ新築モデルハウスが完成いたしました。『LDKと主寝室に寒冷地エアコン、照明、カーテンが標準設定』+『家電50万円分、家具30万円分』がすべてフル装備パックされた、3LDKモデルハウスです!

2026年1月31日~2月1日の2日間、モデルハウスの完成見学会&販売会を開催いたします!
■販売価格:3540万円(税込み)
■土地面積:165.91㎡(50坪)
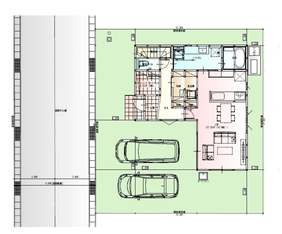
■建物面積:101.43㎡(30坪)
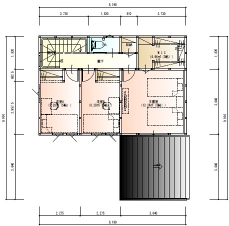
■間取り:3LDK
※駐車スペースは2~3台分確保できます。2台並べてカーポート設置が可能です。
※ご成約された方にはヤマダデンキで選べる『家電50万円分』、さらに『家具30万円分』をプレゼント♪(カーテン・家電・家具は、弊社指定店での選定となります。)
新築・建て替えをお考えの方は、広さや間取り、空間の使い方や設備など、理想のマイホームのイメージづくりとして、ぜひ参考にしていただきたいなと考えております。また、土地をお探しの方にはご希望の土地をお探しするお手伝いもいたします。ご相談は無料ですのでこの機会にぜひお話しくださいませ💁
ご相談の方は事前予約をおすすめしております。
👇 👇 👇
事前予約はページ内のカレンダーから!
ページ内のカレンダーから見学ご希望の日時をお選びください。必要事項をご入力いただき、ご予約完了となります。お気軽にご予約くださいませ💁
皆様のお越しを心よりお待ちしております😊
完成見学会
見どころ
明和町モデルハウス
-
-
-
-
-
+2
モダンな黒の外壁にアクセントのブラウンが映える外観。たっぷりの収納空間と回遊できる生活動線で、ストレスフリーな生活を叶えます。ゆとりある間取りがうれしい3LDKのモデルハウスです。
Point1 ゆったりとしたLDK
ゆったりとしたLDKは、家族みんなが自然と集まる心地よい空間。広々としていて開放感があり、くつろぎと団らんの場にぴったり♪来客時にもゆとりある空間でおもてなしができます。
Point2 ランドリールーム

洗う、干すがこの場で完結するランドリールーム。短い家事動線で時短家事をサポートします。洗面スペースは独立させ、おしゃれな洗面材を使用しています。
Point3 回遊できる生活動線

1階はぐるぐると回遊できる動線を採用しました。リビングを中心に➝ユーティリティ➝ウォークスルークローゼットと、コンパクトな動線をとることで、毎日の家事が効率よくラクにこなせ、家族みんながストレスを感じることなく動くことができます。
Point4 豊富な収納スペース

2帖のシューズクローク、3帖のウォークインクローゼットなど、大型の収納をはじめとした豊富な収納をご用意しました。さっとしまえて必要な時にさっと取り出せる理想的なスペースです。
〈生活インフォメーション〉

■学区■
城南小学校 徒歩9分(約680m)
若松第五中学校 徒歩10分(約800m)
学校はどちらも徒歩10分圏内なので小さなお子様の通学にも安心です♪
■生活施設■
ヨークベニマル門田店 徒歩8分(約650m)
セブンイレブン会津天神町店 徒歩4分(約320m)
徒歩圏内にスーパーがあり、雪の日なども車を利用せずお買い物が可能です。
「まだまだ考えているだけの段階だからな…」と迷われている方、ご見学だけでもお気軽にお越しいただいて構いません😊家づくりで分からないこと、ローンや補助金制度、間取りや土地の探しのお悩みなど、ご見学された際に一緒にお話ししていただけると嬉しいです!みなさまのお越しをお待ちしております♪
お知らせ
ご来場&ご成約特典
モデルハウスをご成約いただいたお客様には
ご成約特典をご用意しております!
詳しくはスタッフまでおたずねください💁
イベント概要
| タイトル | 【会津若松市明和町】ヤマダホームズ新築モデルハウス 完成見学会&販売会開催! |
|---|---|
| 開催日時 |
2026年01月31日(土)〜2026年02月01日(日) 10:00〜17:00 |
| 開催場所 | 福島県会津若松市明和町 |
| 会社ホームページ | https://taisei-house.net/ |