予約可能日時
※日付を選ぶと予約時刻を選択できるようになります。
見どころ
住宅展示場が初めての方!
ご家族だけでゆっくりと見学できる
「フリー見学会」

\営業しません!/
お客様をモデルルーム内で「ほったらかし」にする見学会です。
営業はいたしませんので、ご家族だけで自由にゆっくりと見学してください!
%20(940%20x%20540%20px).png)
\こんな方にピッタリ!/
✅ 家づくりの第一歩を踏み出したい方
✅ 営業トークなしで、じっくり検討したい方
✅ 家族と相談しながら、のんびり見学したい方
✅ 色々な間取りや設備をチェックしたい方
✅ 住宅展示場を初めてご見学される方
\フリー見学会のお約束/
✅アンケートの記入いりません!
✅営業はしません!
✅アポなし訪問一切しません!
「ただ見学したいだけ」「情報収集だけ」の方も大歓迎です!
実際に「見て、触れて、感じる」
暮らしの雰囲気をぜひ体験しにいらしてください!
お帰りの際にはお声掛けください。
カタログをお渡しさせていただきます!
アンビーハウジングパーク
縁側×中庭を取り入れた和モダン住宅


①「平屋+α」の現代的な間取り
1階中心の設計で日常動線をシンプルに。家族全員が快適に過ごせる空間を実現。
②和の風情漂う中庭のある間取り
縁側付き中庭を中心に、懐かしさと温かみのある和の空間を演出。
③約26.4帖の広々LDK
吹き抜けのあるゆとりのLDKで、家族がのびのびと過ごせる開放的な空間。
④効率的な動線設計
北側の間取りを1本の通路でつなぎ、使い勝手の良さを追求した設計。









フリー見学の流れ
STEP.1
受付でお名前だけお聞かせください。
※簡単に当社の会社説明だけさせていただきます。
※営業は一切しませんのでご安心ください。
STEP.2
フリー見学タイム
ここからはフリータイム。
ただただ、モデルハウスを自由に見てください♪
STEP.3
見学終了時にはお声かけください。
お帰りの際に、ご感想などお聞かせいただければ幸いです。
カタログなどをお渡しさせていただきます。
この見学会は「当日予約」大歓迎!
※2時間前にご予約ください
空いた休日に、気軽にご見学いただけます♪
実際に「見て、触れて、感じる」
暮らしの雰囲気をぜひ体験しにいらしてください!
※必ずご予約をお願いします。
マップ
熊本県合志市竹迫2287-3
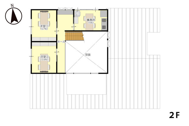
間取り
概要
| タイトル | ★営業無し!フリー見学会★ 住宅展示場が初めての方におすすめ!【アンビーハウジングパーク】 |
|---|---|
| 開催日時 |
2024-07-07 ~ 2024-08-18
10:00〜17:00 |
| 開催場所 | 熊本県合志市竹迫2287-3 |
| 種別 | 予約制 |
| 種類 | 無人見学会 |
| 会社ホームページ | https://home.takasugi.co.jp/ |