予約可能日時
※日付を選ぶと予約時刻を選択できるようになります。
見どころ
松橋駅まで徒歩2分♪
とんがり屋根のかわいい平屋
展示期間終了につき
550万円プライスダウン!
建物面積 / 30.15坪(3LDK)
敷地面積 / 81.20坪
駐車スペース / 3~4台
旧価格 / 3,999万円(税込)
(2024年10月公示)
➡ 新価格 / 3,449万円(税込)
(2024年11月価格改定)
お支払い例
月々 / 82,010円
ボーナス払い / 0円
頭金 / 49万円 借入額 / 3,400万円
●市中地方銀行提携ローン40年返済●変動金利型優遇タイプ金利0.75%(分譲地特別金利)使用の場合※借入期間中は店頭基準金利から2.125%を優遇●適用される金利は、融資実行日の金利となりますので表示の金利とは異なる場合があります。●諸費用は別途申し受けます。※金利はお客様によって異なります。
とんがり屋根のかわいい平屋は
こんなお家です!
LDK
約20.4帖の家族でゆったりくつろげるLDK。グレージュ色の壁紙に、アンティーク調の照明やインテリアが優雅さを演出します。塔屋部分がアクセントとなり、より一層の開放感と十分な採光を確保。リビング隣にはウォークインクローゼットも備わり、お出かけ用のバッグ類やコート類などの収納に便利です。

キッチン
お料理をしながら、リビングでくつろぐ家族とコミュニケーションが取れる間取り。キッチン奥にはパントリーと冷蔵庫を収納できるスペースを設けました。

玄関
ただいま手洗い・うがい用の洗面スペースを設けた玄関。リビングに入る前に手洗いができるのでとっても衛生的!お子様の手洗いの習慣づけにもなります。さらに、家族用と来客用で分けられる造りなので、玄関はいつもスッキリ♪

独立洗面化粧台
何かと慌ただしい朝の時間。洗面台が2つあるので忙しい朝もとってもスムーズに!





真冬もエアコン1台でぽかぽか快適♪
世界トップクラスの断熱性能で光熱費もお得に!

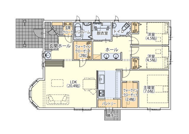
★間取り図★
.jpg)
★保証・メンテナンス★





★周辺環境★
松橋駅まで徒歩2分
他にもスーパーやコンビニ、病院など
徒歩10分圏内に揃う好立地です。

交通機関
- JR鹿児島本線「松橋」駅 徒歩2分/約160m
- 九州産交バス「松橋産交」停 徒歩9分/約650m
教育施設
- 不知火小学校 徒歩17分/約1,300m
- 不知火中学校 徒歩23分/約1800m
- 松橋保育園 徒歩11分/約850m
- 不知火保育園 徒歩17分/約1,300m
商業施設
- マルショク松橋駅前店 徒歩3分/約210m
- ゆめマート松橋店 徒歩10分/約750m
- セブンイレブン宇城御領店 徒歩6分/約450m
医療機関
- 宇城総合病院 車4分/約2,400m
- きむら医院 徒歩3分/約170m
- 坂口医院 徒歩9分/約650m
公共施設
- 宇城市不知火支所 徒歩10分/約800m
- 松橋郵便局 徒歩7分/約500m
- 肥後銀行 松橋支店 徒歩9分/約700m
- 熊本銀行 菊陽支店 徒歩5分/約400m
- 大塚公園 徒歩12分/約900m
【予約来場特典】

・前日までのご予約で5,000円分
・当日のご予約で2,000円分
当日ご見学希望のお客様はお電話にてご連絡下さい。
➡ 0120-69-3771
※スタッフが常駐しておりませんので、必ず事前のご予約をお願い致します。
【予約来場特典プレゼント対象条件】
①TAKASUGIのモデルハウス・分譲地に初めてご来場で、お家づくりをご検討中の方。
②ご夫婦でご来場の方。
③アンケートにご協力いただいた方。
※建て替え、他社でご契約・建築中の方は対象外とさせて頂きます。
マップ
熊本県宇城市不知火町御領
間取り
概要
タイトル | 【 展示期間終了につき特別価格で販売! 】とんがり屋根のかわいい平屋 |
---|---|
開催日時 |
2024-11-02 ~ 2024-12-27
10:00〜17:00 ※日によって異なります |
開催場所 | 熊本県宇城市不知火町御領 |
種別 | 予約制 |
種類 | 建売販売会 |
会社ホームページ | https://www.takasugi.co.jp/ |