予約可能日時
※日付を選ぶと予約時刻を選択できるようになります。
見どころ
【豊岡市妙楽寺モデルハウス】
「OPEN HOUSE」を開催いたします
年末に完成したモデルハウスの完成見学会を開催いたします。家づくりをお考えの方、理想の住まいを探している方にとって、見逃せないチャンスです。ぜひこの機会に実際の住空間を体感してみてください。
妙楽寺モデルハウスはZEH仕様です!
とても省エネ性の高いお家となっています!
断熱等性能等級 6
[ Ua値:0.44 w/㎡・k C値:0.17 ㎠/㎡ ]
家の中が1年中快適な温度で過ごせ、光熱費などのランニングコストが安くなったり、災害時に電力を確保できるなどのメリットがあります。

ソーラーパネル6kw搭載で光熱費を削減!
年間光熱費が従来の住宅より約20万円お得に♪
20帖弱の広々リビング。ワンフロアの開放空間で快適な毎日

広々とした20帖弱のリビングは、南向きの大きな窓から自然光がたっぷりと差し込み、心地よいリラックス空間を演出します。家族や友人と過ごす時間が、より特別なものになることでしょう。
計画的な家事動線で奥様のストレスを軽減!

キッチン隣にあるパントリーや勝手口との連携で、ゴミ出しや買い物帰りの動線を最適化。ランドリールームとも近いため、家事がスムーズに進み、毎日の生活がもっと快適に。家事に追われることなく、家族との大切な時間を充実させることができます。
一つの空間で洗濯が完結「ランドリールーム」

1部屋だけで洗濯が完結する「ランドリールーム」。洗濯物を運ぶ手間が省け、時間を有効に使えるのが大きなメリットです。家事の時短を実現し、家族との時間を大切にすることができます。
ご予約いただいた方には、特別なノベルティをプレゼントいたします。今しか体験できないこのチャンスをお見逃しなく!
見学会では、実際の生活を想像しやすいように家具やインテリアを配置し、リアルな住空間を演出します。お友達やご家族をお誘い合わせの上、ぜひご参加ください。実際に触れて、感じて、そしてあなたの理想の住まいを見つける第一歩を踏み出しましょう。
皆様のご参加を心よりお待ちしております。お申し込みは、下記のリンクから簡単に行えます。
今すぐ行動して、素敵な住まいの未来を手に入れましょう!
マップ
兵庫県豊岡市妙楽寺
キャンペーン情報
予約来場
キャンペーン実施中!
キャンペーン実施中!
ご予約いただくと最大10,000円分のQUOカードプレゼント!

< STEP 1 >
事前予約&見学会場ご来場 で 3,000円分
(※来場アンケート・SNSフォローをして頂く必要があります)
< STEP 2 >
個別セミナー参加 or
土地案内 or
現地調査 のいずれかで 3,000円分
< STEP 3 >
プラン作成 で 4,000円分
最大 10,000円分 の QUOカード PRESENT!
※新規のお客様に限ります
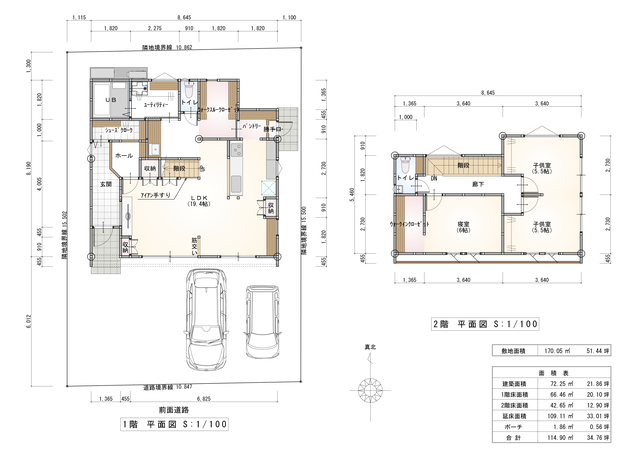
物件概要
一戸建て 物件概要
| 所在地 | 豊岡市妙楽寺 | 地目 | 宅地 |
|---|---|---|---|
| 用途地域 | 第一種住居地域 | 建ぺい率 | 60% |
| 容積率 | 200% | 土地面積 | 170.05m²/51.44坪 |
| 建物面積 | 114.9m²/34.76坪 | 総戸数/所有持分 | 戸 |
| 今回販売戸数 | 1 戸 | 最多販売価格帯 | |
| 販売価格 | 3680.0 万円(税込) | 価格に含まれる負担金 | なし |
| 設備概要 | 上下水道、関西電力、プロパンガス | 維持・管理費 | なし |
| 建物構造/階建 | 木造2階建て | 間取り | 3LDK+2CL |
| 築年月 | 2024年11月23日 / 完了予定 | 建築確認番号 | 第中HK24-30056号 |
| 道路幅員 | 南側4m1方 | 私道負担 | なし |
| 交通 | 全但バス「妙楽寺」バス停より徒歩1分 | 学区 | 八条認定こども園:車3分、八条小学校:徒歩10分、豊岡南中学校:徒歩19分 |
| 取引態様 | 売主 | 媒介(仲介)手数料 | |
| 引渡 | 相談 | 特定事項 | なし |
| 備考 | 土地・建物・地盤補強・外構工事・エアコン2台・レースカーテン含む | 建設業許可番号 | 兵庫県知事(般4)第650585号 |
| 宅地建物取引業免許番号 | 兵庫県知事(12)第650011号 | 建築士事務所登録番号 | 一級建築士事務所 第01A03935号 |
| 所属団体名及び加盟する公正取引協議会 | (一社)兵庫県宅地建物取引業協会会員・(公社)近畿地区不動産公正取引協議会加盟 | 公開日 | 2024年11月05日 |
| 更新日 | 2026年01月07日 | 次回更新予定日 | 2026年01月21日 |
間取り
概要
| タイトル | 【豊岡市妙楽寺モデルハウス】 | 木のぬくもりあふれる家 |
|---|---|
| 開催日時 |
2025-01-20 ~
10:00〜17:00 |
| 開催場所 | 兵庫県豊岡市妙楽寺 |
| 種別 | 予約制 |
| 種類 | モデルハウス |
| 会社ホームページ | https://uesugi-koumuten.com/ |