見どころ
[Up DATE City Fukushima SORACHIE]
「アップデートシティふくしま ソラチエ」で暮らす
「アップデートシティふくしま ソラチエ分譲地」で
心地よい暮らしを始めませんか?
全世代が笑顔で暮らせるまちを目指し、
あたたかさと安心を提供しています。
限定2区画にて販売中です。
(画像の青枠2箇所)


【おすすめポイント】
◎車で5分圏内に伊達中央IC
◎2026年開業予定のイオンモール伊達へのアクセスは、無料高速で1区間
◎2025年4月、認定こども園「(仮称)高子北認定こども園」が開園
◎「Up DATE Cityふくしまタウンデザインガイドライン」を策定し、より良い街並みを形成
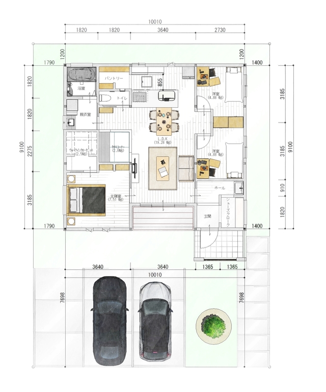
【間取りの参考例(26坪3LDKの平屋)】

【配置図】

【完成予想図】
マップ
福島県伊達市保原町高子岡10
物件概要
建築条件付き土地 物件概要
| 所在地 | 福島県伊達市保原町高子岡 | 開発総面積 | - |
|---|---|---|---|
| 総区画数 | - | 今回販売区画数 | 2 区画 |
| 土地面積 | 237.53m² / 71.85坪 〜 237.56m² / 71.86坪 | 用途地域 | 第一種低層住居専用地域 |
| 地目 | 宅地 | 建ぺい率 | 60% |
| 容積率 | 100% | 造成工事完了年月 | - |
| 開発許可番号 | - | 道路幅員 | 南側6m |
| 私道負担 | なし | 土地価格 | 1199.0 万円 |
| 最多販売価格帯 | - | 価格に含まれる負担金 | なし |
| 設備概要 | 公営水道、個別プロパン、公共下水、東北電力 | 維持・管理費 | 引き渡し時に一括徴収にて120,000円(5年分)。5年目以降は年度初めに1年分24,000円。 |
| 交通 | 阿武隈急行高子駅徒歩5分 | 学区 | 上保原小学校、松陽中学校 |
| 取引態様 | 売主 | 媒介(仲介)手数料 | 不要 |
| 引渡 | 相談 | 特定事項 | なし |
| 備考 | 別途水道加入金165,000円(税込)(※20mm口径)が掛かります。 | 建築請負会社 | アイワビルド株式会社 |
| 建設業許可番号 | - | 宅地建物取引業免許番号 | - |
| 建築士事務所登録番号 | - | 所属団体名及び加盟する公正取引協議会 | - |
| 公開日 | 2024年08月12日 | 更新日 | 2025年11月01日 |
| 次回更新予定日 | 2025年11月15日 | - |
- ※建築条件付き土地について:土地売買契約締結後3ヶ月以内に指定された建設会社と建築請負契約を結んでいただくことを条件として販売されています。この期間内に建築請負契約が成立しない場合は、土地売買契約は無効となり、受領済みの手付金等は全額無利息で返還されます。
- ※建築プラン例について:あくまでも一例であり、お客様がプランを自由に決定できます。別途建築確認費用などが必要となります。
- ※支払い例について:あくまでも一例であり、お借入金額、金利などで支払い額は変動します。登記費用、諸費用などは含まれておりません。また、融資をお約束するものではありません。
概要
| タイトル | アップデートシティふくしま ソラチエ分譲地 |
|---|---|
| 開催日時 |
2024-08-17 ~
10:00〜17:00 |
| 開催場所 | 福島県伊達市保原町高子岡10 |
| 種別 | オープン制 |
| 種類 | 分譲地 |
| 会社ホームページ | https://cleverlyhome.shop/ |