予約可能日時
※日付を選ぶと予約時刻を選択できるようになります。
見どころ
倉敷市爪崎 駅徒歩7分のモデルハウス、先行販売開始!!
1階平面図
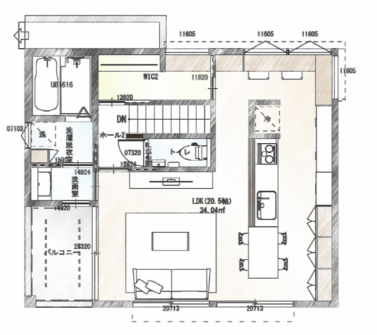
2階平面図
新倉敷駅まで徒歩7分。通勤・通学にも便利な駅チカ立地に、限定1棟の先行モデルハウスが登場。
小学校まで徒歩12分、中学校までは徒歩8分と、子育て環境にもぴったり。生活利便も整った住みよいエリアです。
2階リビング&大回遊動線など、家事も子育てもラクになる工夫が満載。
開放感ある暮らしをはじめてみませんか?

2階平面図
見どころポイント
◆帰ってきてすぐに手洗いできる玄関手洗い
◆水回り近くに家族全員が使えるクローゼットを配置。効率がよく暮らしやすい動線
◆開放的な窓ながらも、回りの視線も気ならず居心地よく暮らせる2階リビング
◆家族がぐるぐる交差できる大回遊の間取り

今すぐ新生活が始められます✨
販売価格
4,180万円(税込)
… 土地 1,298万円(非課税)
… 建物 2,470万円(税別)
… 附帯※ 150万円(税別)
… 建物・附帯の消費税 262万円(税)
※附帯とは … 外構・太陽光など
住宅ローン シミュレーション例
お借入れ:4,100万円
頭金:80万円
月々 83,196 万円(ボーナス10万円/年2回)
※中国銀行 変動金利0.8%適用 40年返済
※令和6年7月時点
物件概要
価格:4,180万円(税込)
所在地:倉敷市玉島爪崎204-8
交通: 新倉敷駅北口:徒歩約7分
敷地面積: 36.22坪(119.76㎡)
延床面積: 32.43坪(107.23㎡)
∟ 1階床面積:51.34㎡(15.53 坪)
∟ 2階床面積:55.89㎡(16.90 坪)
∟ 2階床面積:55.89㎡(16.90 坪)
地目: 宅地
用途地域: 第二種住居地域
小学校区: 長尾小学校
中学校区: 玉島北中学校
建ぺい率: 60%
容積率: 200%
取引形態: 売主
都市計画 :市街化区域
設備:カップボード、エアコン1台、宅配ポスト、太陽光発電など
道路:幅員約5m
ご来場プレゼント
WEBからのご予約でイオン商品券3000円分 or QUOカード3000円分をプレゼント✨
※ご来場プレゼントは、マイホームのご計画がない方、すでにマイホームをお持ちの方は対象外とさせていただきます。ご了承ください。
見学会開催日時
~開催中
10:00~18:00
イベントに関するお問い合わせ先
和建設株式会社 080-8388-5670(担当:濱田)
10:00~18:00 定休日:水曜日
※ 当日参加のご予約は、お電話にてお問い合わせくださいませ ※
マップ
岡山県倉敷市 玉島爪崎204-8
間取り
概要
| タイトル | 【倉敷市玉島爪崎】FLEX12 モデルハウス 限定1棟 先行販売開始 |
|---|---|
| 開催日時 |
2025-07-26 ~
10:00〜18:00 |
| 開催場所 | 岡山県倉敷市 玉島爪崎204-8 |
| 種別 | 予約制 |
| 種類 | 建売販売会 |
| 会社ホームページ | https://shinka.kano-kensetsu.com/ |